產品分類
PRODUCT CENTER產品規格更多
| 產品 | 規格 |
|---|---|
| 二波板 | 4320*310*85*3/4 |
| 三波板 | 4320*506*85*3/4 |
| 圓立柱 | 直徑140/114*4.5 |
| 方立柱 | 130*130*6*2540 |
| 防阻塊 | 196*178*200*3/4.5 |
| 托 架 | 70*300*4/4.5 |
| 柱 帽 | 140/114適配 |
| 螺 栓 | M16*35/45/170 |
| 方墊片 | 76*44*4 |
| 單端頭 | R160*3/4 |
點擊數:1112025-09-05 15:55:23 來源: 波形護欄|護欄板價格|高速護欄板廠家-冠縣華安交通
高速公路、一級公路等快速路多使三波形A級或SB級等高強度的波形護欄,A級波形護欄之前已經分析過,今天咱們一起來看看關于三波SB級路側波形護欄的設計規范細則是怎樣的吧!
(以下內容標準截取自——公路交通安全設施設計細則(JTGTD81-2017)
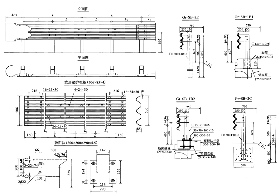
四(SB)級波形梁護欄結構構造與規格尺寸:
四(SB)級路側波形梁護欄一般構造示例如圖所示:
四(SB)級路側波形梁護欄參數和使用該范圍如下:
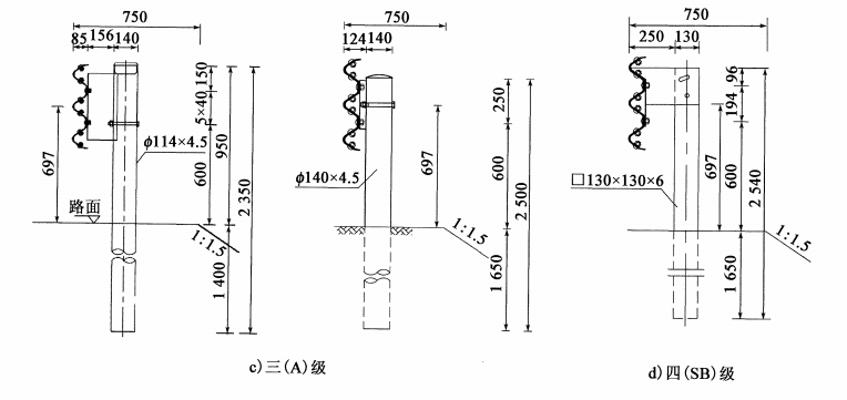
這兩種等級的波形護欄主要的區別在于外形及可吸收碰撞能量的不同。
三波A級波形護欄采用的是直徑140的圓管立柱,根據路肩寬度占用距離分別采用了雙胞胎防阻塊和三波托架兩種不同的連接方式,但它們的可吸收碰撞能量都是160KJ;
三波SB級采用的是130*130的方管立柱,結合飛機翅防阻塊,380mm的路肩寬度占用距離和280KJ的可吸收碰撞能量也在一定程度上決定了SB級波形護欄的使用范圍。
路側三波A級護欄與SB級護欄橫斷面布置圖:
實物參考圖如下:

